
Casa Greens 1, Sector 16, Greater Noida, Uttar Pradesh, India
2
2
2022
1385
Apartment
Available
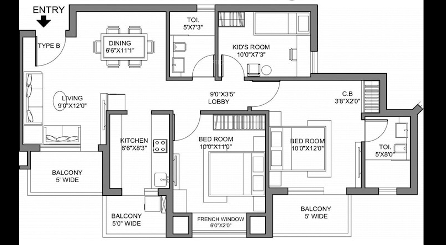
Casa Greens has apartments ready for you to move in. You can choose from two-bedroom, two-bedroom with a study room, or three-bedroom options. On the ground floor, we have large two-bedroom and two-bedroom with study room apartments. Whether you pick a two or three-bedroom apartment, we ensure the same high-quality construction. Each apartment has nice balconies, bathrooms, living rooms, and kitchens made for families. The project comes with a super modern clubhouse. Inside, there are two big libraries for older folks and fun areas for kids. You'll also find beautiful parks, a pool just for kids, courts for squash, table tennis, and billiards, plus spots for other fun stuff. The group also knows it's important to stay healthy, so there are swimming pools, yoga spots, and quiet places for meditation right in the community. Noida Extension, also known as Greater Noida (West), used to be a smaller city but now it's become a great place to live. The roads are good, there's easy access to water and power, and the area is well-connected. Because of this, more and more housing projects are popping up here. Casa Greens 1 Noida is one of these projects, promising to deliver on time and provide a comfortable and luxurious living space. It's a project you can trust.
Read moreProperty ID
Price
Property Size
Bathrooms
Bedrooms
Id-1022
₹79.00 Lacs*
1385 Sq.Ft.
2
2
Year Built
Possesion Status
Property Type
Others
2022
Ready To Move
Apartment
Study Room
Basketball Court
Cafe
CCTV
Club House
Community Hall
Garden
Gated Community
Gym
Indoor PlayArea
Intercom
Jogging Track
Kids PlayArea
Lift
Meditation Zone
Party Louge
Power Backup
Sports
Swimming Pool
Water Supply

Just Abode has made an effort to determine whether RERA (Real Estate Regulation and Development Act) registration is required. However, it's important to note that the advertiser asserts that such registration is not necessary. Users are urged to proceed with caution and consider this information accordingly.Just Abode functions solely as a platform for sharing information and content. It's important to clarify that the data available on our website has not been physically verified, and as a result, no explicit or implied representation or warranty is provided regarding its accuracy. We strongly advise users to conduct thorough research and due diligence before making any investment decisions. Please be aware that nothing found on this platform should be considered as legal advice, solicitation, invitation, or any similar form of communication.
Read more
ARIHANT ONE, Greater Noida West Road, Sector 1, Noida, Uttar Pradesh, India, India, 201305, Noida Extension
Sector 12, Noida, Uttar Pradesh, India, India, 201301, Noida Extension
Palm Olympia, Sector 16C, Gaur City 2, Chipyana Khurd Urf Tigri, Uttar Pradesh, India, India, 201307, Noida Extension
Palm Olympia, Sector 16C, Gaur City 2, Chipyana Khurd Urf Tigri, Uttar Pradesh, India, India, 201307, Noida Extension
Centurian Park, Plot No GH-05, techzone 4, Greater Noida West, India, 201306, Noida Extension
JustAbode.com serves solely as a platform for displaying advertisements and informational content. We do not play any role in facilitating or can be construed as facilitating any transactions between sellers/developers and our website visitors/users. The information presented on our website is purely for informational purposes. Details pertaining to real estate projects, including property/project descriptions, listings, floor area, location, and prices, are either provided by third parties or gathered from publicly available sources.
It is important to note that nothing within this website should be interpreted as legal advice, solicitation, marketing, sales offers, or invitations to buy or invest in any property. We strongly advise users of this website to exercise due diligence and independently verify all information related to any property or project before making any purchase or taking any other action.Please be aware that the information provided on this website does not guarantee that the developer/project is registered under the Real Estate (Regulation and Development) Act, 2016, or is in compliance with it. Independent verification of this status is also recommended.
JustAbode.com serves solely as a platform for displaying advertisements and informational content. We do not play any role in facilitating or can be construed as facilitating any transactions between sellers/developers and our website visitors/users. The information presented on our website is purely for informational purposes. Details pertaining to real estate projects, including property/project descriptions, listings, floor area, location, and prices, are either provided by third parties or gathered from publicly available sources.It is important to note that nothing within this website should be interpreted as legal advice, solicitation, marketing, sales offers, or invitations to buy or invest in any property. We strongly advise users of this website to exercise due diligence and independently verify all information related to any property or project before making any purchase or taking any other action.Please be aware that the information provided on this website does not guarantee that the developer/project is registered under the Real Estate (Regulation and Development) Act, 2016, or is in compliance with it. Independent verification of this status is also recommended.
Read more
reviews