
The Address, Sector 22B, Sector 22, Chandigarh, India
2
2
2024
800
Apartment
Available
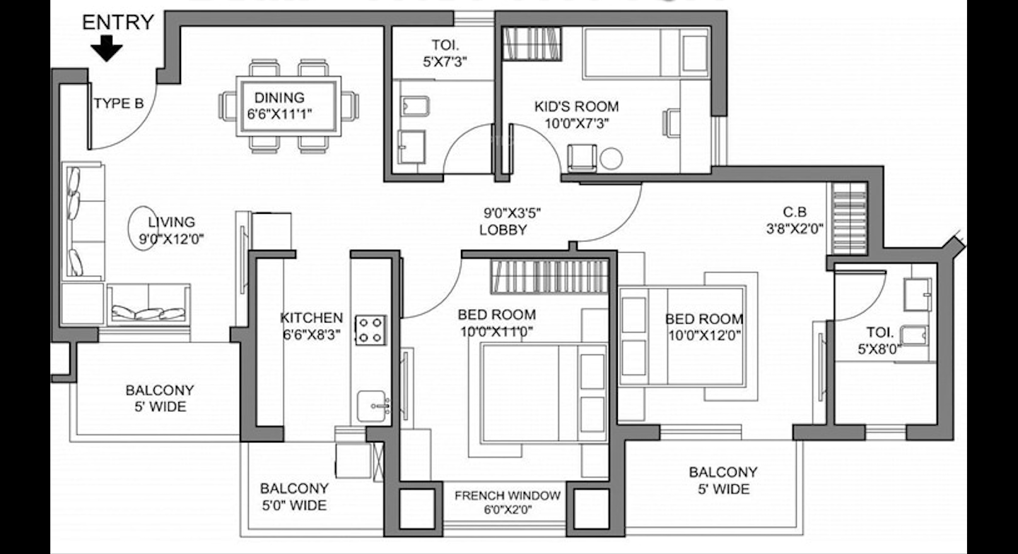
Discover The Address, an upcoming housing society in Chandigarh that's currently under construction, promising a vibrant lifestyle for its residents. Whether you're in the market for a cozy 2BHK or a spacious 3BHK, The Address offers a range of apartment options to suit your needs. Developed by Address Infrastructures and PCL Gateway, this society is set to be ready for possession by March 2024. The Address isn't just about providing shelter; it's about crafting a living experience tailored to modern demands. From essential amenities to recreational facilities, every aspect of daily life is catered to within its walls. Imagine starting your day with a refreshing swim in the pool or a brisk jog along the dedicated track. For fitness enthusiasts, there's a fully-equipped gymnasium to help you stay in shape. Sports lovers can indulge in a game of basketball or badminton on the courts provided. Moreover, practical considerations such as 24-hour power backup and water supply ensure uninterrupted comfort for residents. The layout of the society is designed with convenience in mind, with well-planned internal streets connecting every corner of the apartment complex. Security is paramount, with a two-tier security system in place to provide residents with peace of mind. In addition to the physical amenities, The Address offers prospective buyers a comprehensive overview of the society, including price lists, floor plans, payment options, and more. It's not just a place to live; it's a community waiting to be explored, experienced, and enjoyed.
Read moreProperty ID
Price
Property Size
Bathrooms
Bedrooms
Id-1382
₹58.50 Lacs*
800 Sq.Ft.
2
2
Possession Year
Possesion Status
Property Type
2024
Under Construction
Apartment
Basketball Court
Cafe
CCTV
Club House
Community Hall
Garden
Gated Community
Gym
Indoor PlayArea
Jogging Track
Kids PlayArea
Lift
Meditation Zone
Power Backup
Sports
Swimming Pool
Water Supply

Just Abode has made an effort to determine whether RERA (Real Estate Regulation and Development Act) registration is required. However, it's important to note that the advertiser asserts that such registration is not necessary. Users are urged to proceed with caution and consider this information accordingly.Just Abode functions solely as a platform for sharing information and content. It's important to clarify that the data available on our website has not been physically verified, and as a result, no explicit or implied representation or warranty is provided regarding its accuracy. We strongly advise users to conduct thorough research and due diligence before making any investment decisions. Please be aware that nothing found on this platform should be considered as legal advice, solicitation, invitation, or any similar form of communication.
Read more
ARIHANT ONE, Greater Noida West Road, Sector 1, Noida, Uttar Pradesh, India, India, 201305, Noida Extension
Sector 12, Noida, Uttar Pradesh, India, India, 201301, Noida Extension
Palm Olympia, Sector 16C, Gaur City 2, Chipyana Khurd Urf Tigri, Uttar Pradesh, India, India, 201307, Noida Extension
Palm Olympia, Sector 16C, Gaur City 2, Chipyana Khurd Urf Tigri, Uttar Pradesh, India, India, 201307, Noida Extension
JustAbode.com serves solely as a platform for displaying advertisements and informational content. We do not play any role in facilitating or can be construed as facilitating any transactions between sellers/developers and our website visitors/users. The information presented on our website is purely for informational purposes. Details pertaining to real estate projects, including property/project descriptions, listings, floor area, location, and prices, are either provided by third parties or gathered from publicly available sources.
It is important to note that nothing within this website should be interpreted as legal advice, solicitation, marketing, sales offers, or invitations to buy or invest in any property. We strongly advise users of this website to exercise due diligence and independently verify all information related to any property or project before making any purchase or taking any other action.Please be aware that the information provided on this website does not guarantee that the developer/project is registered under the Real Estate (Regulation and Development) Act, 2016, or is in compliance with it. Independent verification of this status is also recommended.
JustAbode.com serves solely as a platform for displaying advertisements and informational content. We do not play any role in facilitating or can be construed as facilitating any transactions between sellers/developers and our website visitors/users. The information presented on our website is purely for informational purposes. Details pertaining to real estate projects, including property/project descriptions, listings, floor area, location, and prices, are either provided by third parties or gathered from publicly available sources.It is important to note that nothing within this website should be interpreted as legal advice, solicitation, marketing, sales offers, or invitations to buy or invest in any property. We strongly advise users of this website to exercise due diligence and independently verify all information related to any property or project before making any purchase or taking any other action.Please be aware that the information provided on this website does not guarantee that the developer/project is registered under the Real Estate (Regulation and Development) Act, 2016, or is in compliance with it. Independent verification of this status is also recommended.
Read more
reviews