
Sector 22D Yamuna Expressway Authority Flats, Ballukhera, Greater Noida, Uttar Pradesh, India
350
Plots
yes
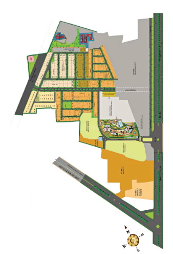
Greenbay Golf Village is a residential plot by Green Bay Infrastructure Private Limited. This plot is available for sale in Yeida, Greater Noida. This project offers plots in various sizes. The minimum plot size is 250.0 sq.yd. and the maximum size is 750.0 sq.yd.. This project was launched on January 2012. There are 684 units in Greenbay Golf Village. The address of Greenbay Golf Village is Plot No. TS - 06, Sector - 22D, Yamuna Expressway. Greenbay Golf Village ensures a coveted lifestyle and offers a convenient living. It offers facilities such as Gymnasium, Power Backup. For families with kids, there is Children's Play Area, nearby apart from Swimming Pool, Sports Area. Sports enthusiasts can also make the most of Tennis Court, Golf Course. Residents can also enjoy Restaurants/ Cafeterias, Internet / Wi-Fi, Conference Room, provisions in the project. Other provisions include access to Multipurpose Room, Maintenance Staff. Yeida is well-connected to other parts of city by road, which passes through the heart of this suburb. Prominent shopping malls, movie theatres, school, and hospitals are present in proximity of this residential project.
Read moreProperty ID
Price
Property Size
Id-3521
₹1.33 Cr*
350 Sq.Yrds.
Property Type
Plots

Just Abode has made an effort to determine whether RERA (Real Estate Regulation and Development Act) registration is required. However, it's important to note that the advertiser asserts that such registration is not necessary. Users are urged to proceed with caution and consider this information accordingly.Just Abode functions solely as a platform for sharing information and content. It's important to clarify that the data available on our website has not been physically verified, and as a result, no explicit or implied representation or warranty is provided regarding its accuracy. We strongly advise users to conduct thorough research and due diligence before making any investment decisions. Please be aware that nothing found on this platform should be considered as legal advice, solicitation, invitation, or any similar form of communication.
Read more
BPTP Green Oaks-BPTP Plots in Gurgaon, Sector 70A, Gurugram, Haryana, India, India, 122001, Gurugram
Shanti Nagar Colony, Anand Lok Colony, Ekta Nagar, Daurli, Meerut, Uttar Pradesh, India, India, 250001, Meerut
BPTP Green Oaks-BPTP Plots in Gurgaon, Sector 70A, Gurugram, Haryana, India, India, 122001, Gurugram
GLS Avenue City, Sector 92, Gurugram, Haryana, India, India, 122505, Gurugram
New Chandigarh, Punjab, India, India, 160017, Chandigarh
JustAbode.com serves solely as a platform for displaying advertisements and informational content. We do not play any role in facilitating or can be construed as facilitating any transactions between sellers/developers and our website visitors/users. The information presented on our website is purely for informational purposes. Details pertaining to real estate projects, including property/project descriptions, listings, floor area, location, and prices, are either provided by third parties or gathered from publicly available sources.
It is important to note that nothing within this website should be interpreted as legal advice, solicitation, marketing, sales offers, or invitations to buy or invest in any property. We strongly advise users of this website to exercise due diligence and independently verify all information related to any property or project before making any purchase or taking any other action.Please be aware that the information provided on this website does not guarantee that the developer/project is registered under the Real Estate (Regulation and Development) Act, 2016, or is in compliance with it. Independent verification of this status is also recommended.
JustAbode.com serves solely as a platform for displaying advertisements and informational content. We do not play any role in facilitating or can be construed as facilitating any transactions between sellers/developers and our website visitors/users. The information presented on our website is purely for informational purposes. Details pertaining to real estate projects, including property/project descriptions, listings, floor area, location, and prices, are either provided by third parties or gathered from publicly available sources.It is important to note that nothing within this website should be interpreted as legal advice, solicitation, marketing, sales offers, or invitations to buy or invest in any property. We strongly advise users of this website to exercise due diligence and independently verify all information related to any property or project before making any purchase or taking any other action.Please be aware that the information provided on this website does not guarantee that the developer/project is registered under the Real Estate (Regulation and Development) Act, 2016, or is in compliance with it. Independent verification of this status is also recommended.
Read more
reviews