
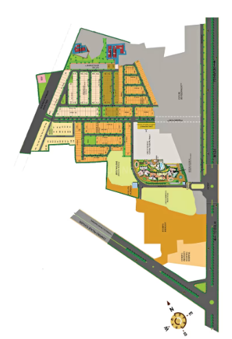
SKY Enclave Noida Extension, west, near Roza Jalalpur, Sadullapur, Greater Noida, Uttar Pradesh, India
60
Plots
yes
Plot for sale in Roza Jalalpur, Greater Noida. This land has a dimension of 30.0 ft length 15.0 ft width. This Plot is available at a price of Rs 47.56 L. The average price per sqft is Rs 2.56k. Price. This is a corner plot. The plot is South-East facing. There are 1 open sides for this plot. The width of the facing road is 18.0 mt. This residential land also has a boundary wall. The maximum floor allowed for construction on this plot is 4. The most popular landmarks near this plot are Tasty Tanduri Treats - momos & more, Cross Town Hotel & Restaurant, Delhi Darbar Restaurant
Read moreProperty ID
Price
Property Size
Id-3601
₹47.56 Lacs*
60 Sq.Yrds.
Property Type
Plots

Just Abode has made an effort to determine whether RERA (Real Estate Regulation and Development Act) registration is required. However, it's important to note that the advertiser asserts that such registration is not necessary. Users are urged to proceed with caution and consider this information accordingly.Just Abode functions solely as a platform for sharing information and content. It's important to clarify that the data available on our website has not been physically verified, and as a result, no explicit or implied representation or warranty is provided regarding its accuracy. We strongly advise users to conduct thorough research and due diligence before making any investment decisions. Please be aware that nothing found on this platform should be considered as legal advice, solicitation, invitation, or any similar form of communication.
Read more
BPTP Green Oaks-BPTP Plots in Gurgaon, Sector 70A, Gurugram, Haryana, India, India, 122001, Gurugram
Shanti Nagar Colony, Anand Lok Colony, Ekta Nagar, Daurli, Meerut, Uttar Pradesh, India, India, 250001, Meerut
Kanker khera, Kanker Khera, Meerut Cantt, Meerut, Uttar Pradesh, India, India, 250001, Meerut
Rohta Road, Nai Basti, Fazalpur, Meerut, Uttar Pradesh, India, India, 250002, Meerut
JustAbode.com serves solely as a platform for displaying advertisements and informational content. We do not play any role in facilitating or can be construed as facilitating any transactions between sellers/developers and our website visitors/users. The information presented on our website is purely for informational purposes. Details pertaining to real estate projects, including property/project descriptions, listings, floor area, location, and prices, are either provided by third parties or gathered from publicly available sources.
It is important to note that nothing within this website should be interpreted as legal advice, solicitation, marketing, sales offers, or invitations to buy or invest in any property. We strongly advise users of this website to exercise due diligence and independently verify all information related to any property or project before making any purchase or taking any other action.Please be aware that the information provided on this website does not guarantee that the developer/project is registered under the Real Estate (Regulation and Development) Act, 2016, or is in compliance with it. Independent verification of this status is also recommended.
JustAbode.com serves solely as a platform for displaying advertisements and informational content. We do not play any role in facilitating or can be construed as facilitating any transactions between sellers/developers and our website visitors/users. The information presented on our website is purely for informational purposes. Details pertaining to real estate projects, including property/project descriptions, listings, floor area, location, and prices, are either provided by third parties or gathered from publicly available sources.It is important to note that nothing within this website should be interpreted as legal advice, solicitation, marketing, sales offers, or invitations to buy or invest in any property. We strongly advise users of this website to exercise due diligence and independently verify all information related to any property or project before making any purchase or taking any other action.Please be aware that the information provided on this website does not guarantee that the developer/project is registered under the Real Estate (Regulation and Development) Act, 2016, or is in compliance with it. Independent verification of this status is also recommended.
Read more
reviews